護墻板材十大品牌詳解護墻板施工工藝-護墻板效果圖

木飾面墻裙施工工藝
1、木飾面墻裙的施工做法
1:放線:按所選用的墻裙板的規格在墻面上預劃線,將木條截成劃線尺寸,固定在劃線位置。

θ確定劃線位置
2:用沖擊鉆連同木條一起在墻面鉆出6mm的孔,然后用6mm塑料膨脹螺栓固定,再將木線粘釘在木條上。

θ沖擊鉆固定
3:將墻裙板和分隔木線按順序插進腳線。粘釘分隔木線,企口式可直接插裝。企槽式插一塊裙板及一塊分隔線,然后在封頂木線上涂膠粘釘。

θ安裝墻裙板
4:臺階式和平板式(30-60cm寬)采取插好裙板封頂,然后涂膠粘劑釘分隔木線,最后涂膠封釘口、補漆,將擠出的膠料擦凈。分隔木線釘待固化后可以拔掉。

θ刷飾面漆
2、木飾面墻裙、護墻板構造做法

θ木飾面墻裙立面圖
1:不同飾面板構造做法

θ構造做法1

θ構造做法2

θ構造做法3
注意事項:護墻板,包括項木及所有嵌板都在工廠內加工預制敏包括刷漆,至建筑墻體干燥后安裝。蓋條的作用是為了避免在頂木及抹灰間由于收縮而出現縫隙。
2:踢腳線、不同線腳收口方式

θ構造做法4

θ構造做法5

θ構造做法6
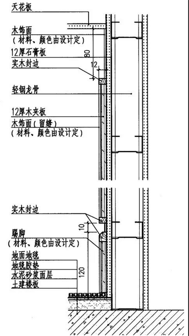
3:護墻板的施工構造

θ護墻板節點圖

θ護墻板構造做法

θ護墻板構造做法
3、制作安裝注意要點

1:制作安裝前應檢查基層的垂直度和平整度,有防潮要求的應進行防潮處理。
2:按設計要求彈出標高、控制線、分格線。打孔安裝木磚或木楔,深度應不小于40mm,木磚或木模應做防腐處理。

θ墻裙剖面圖
3:龍骨間距應符合設計要求。當設計無要求時:橫向間距宜為300mm,豎向間距宜為400mm。龍骨與木磚或木模連接應牢固。龍骨、木質基層板應進行防火處理。
4:飾面板安裝前應進行選配,顏色、木紋對接應自然諧調。

θ木飾面墻裙立面圖
5:飾面板固定應采用射釘或膠粘接,接縫應在龍骨上,接縫應平整。
6:鑲接式木飾面墻可用射釘從四樣邊傾斜射入。安裝第一塊時必須校對豎向控制線。
7:安裝封邊收口線條時應采用射釘固定,釘的位置應在線條的凹槽處或背視線的一側。
雪寶板材 版權所有 轉載請注明出處
相關閱讀:
- 雪寶板材品質摸得著,安全看得見
- 柜門板材材料用什么好?PET柜門板為您提供優質選擇
- 定制衣柜門用什么板材好?PET柜門板為您打造高品質家居
- 櫥柜板材的選擇:細木工板、多層板、OSB板哪種更適合?
- 全屋定制用什么板材?多層板、細木工板、OSB板分析!
- 裝修柜子用什么板材最好?三種主流板材詳解!
- 做衣柜門用什么板材最好?-LSB板的全面解析
- 家具柜門用什么板材比較好?這兩種板材你一定要知道!
- 裝修家具用什么板材好?這些板材或許適合你的裝修需求!
- 家具用什么板材最好?雪寶環保家具板來看看吧!














