優雅小情調丨雪寶簡歐風格142㎡四室兩廳


客戶信息



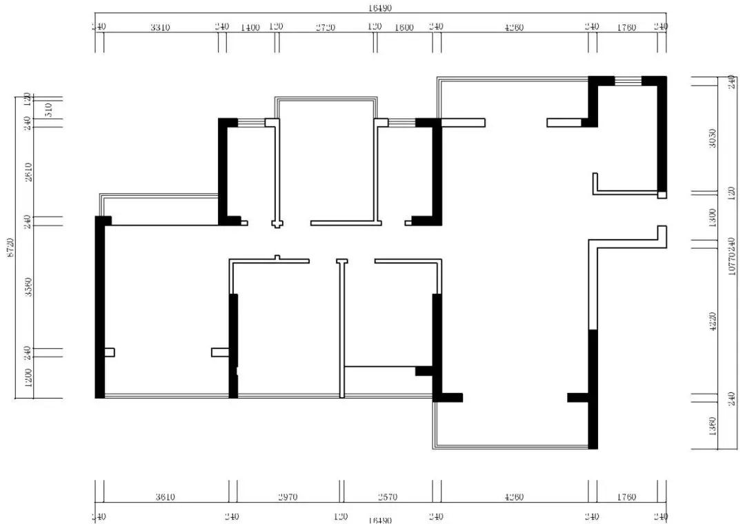
原始平面圖
原戶型特點:
采 光 :戶型南北通透,各空間區域均有開窗,保證采光充足。
動 線 :空間與空間動線相對合理。
通 風 :開闊客餐廳及主臥房帶觀景陽臺、空間無限延伸,戶型整體通風良好。
功 能 性 :動靜分離,功能分區合理。過道狹長,玄關面積小。整體空間開闊,通風采光充足,居住舒適度高。
確定設計風格 :簡歐風格
系 列 :遇見簡歐 · 優雅小情調
花 色 :天使白+粉紅公主
戶 型 :四室兩廳兩衛142㎡

設計說明
高太太的歐式情懷,將家的裝修風格定位為“現代簡歐”,既保留了歐式風格中對于家的體驗感,又有著設計細節的追求,也注重家的時尚感和收納能力。整個空間以白色調為主,高級灰為輔,藍、黃為點綴,讓整體在優雅恬靜中顯露出一絲生動,加入少量金屬質感元素點綴帶來些許歐式小情調,讓浪漫的簡歐風也不乏品質感。
客餐廳

客餐廳于一體,整個空間以天使白花色為主色基調來營造優雅的生活氛圍。沙發背景墻高級灰搭配以金屬裝飾作為點綴,讓整體空間在優雅恬靜中盡顯歐式奢華。靜立于一側的酒柜,搭配流暢柔美的浮雕與立體造型,溫婉大方,同時具備充足的儲物空間,可謂顏值與實力兼備。亮黃色餐椅搭配,小情調氣息彌漫整個空間,優雅自然。
主臥

主臥去繁就簡,沒有多余的亮麗顏色點綴,也沒有華麗的裝飾,整體空間以溫馨大方為主,旨為營造一個優雅安逸的私密睡眠空間。歐式家具造型及搭配金屬質感的燈飾,盡顯歐式風范,奢華樸實。
男孩房

男孩生性好動愛玩且活力十足,在整個男孩房空間,以藍色系為主色調,旨為給孩子營造一個相對安靜和舒適的獨立區域,讓孩子靜享這一方寧靜和煦專屬空間。萌物墻畫裝飾,可愛氣息油然而生。燈飾造型巧妙搭配,極具現代簡歐優雅小情調。
女孩房

相比男孩房而言,粉色系成為了女兒房的主基調。柜體搭以雪寶炫彩板粉紅公主花色,以及粉色系軟裝裝飾,空間頓生粉嫩乖巧干凈氣息。小女兒正在逐漸長大,一張收納床與衣柜、書柜書桌組合設計,有效擴大空間實用性。既滿足小女兒日常物品的分區收納,也實現睡覺、學習、娛樂等多種功能。
書房

書房是一個追求安靜的生活空間,同時也作為男主人公的辦公之地,因此在書房設計上,選用較為沉穩的色彩修飾,才不會讓讀者感覺浮躁。寧靜致遠,修身養性,坦然處之。
雪寶板材 版權所有 轉載請注明出處
相關閱讀:














